Shoji
︎︎︎︎︎︎︎︎︎︎︎︎︎︎︎︎︎︎︎︎
Un laisser-faire paysager en bordure de village d'une grande délicatesse, évanescent, buissonnant, brumeux, qui se dessine au fil des méandres d'une rivière d'eau claire. Et il y a nous, Homo œconomicus, avec nos marchandises, nos déplacements, nos tempos. Le bâtiment parle de cette alliance de deux mondes que tout oppose.
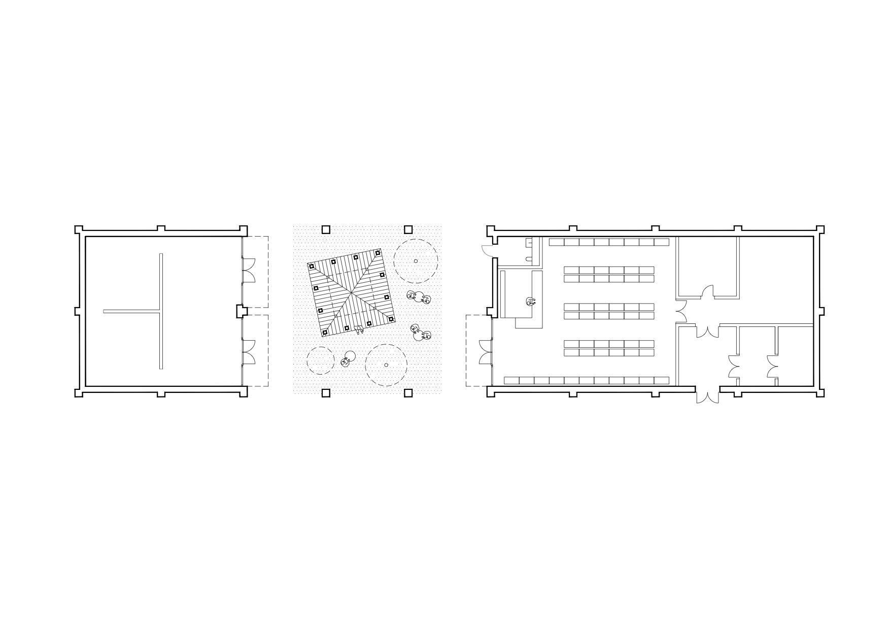
Le pôle des services se dessine de manière linéaire, franche. Sa structure en béton pré-fabriqué et rejetée en façade est rigoureuse, fonctionnelle, binaire. Elle est composée de pleins en tôle d'acier ondulé reflétant son environnement pour mieux s'y fondre et d'un vide central dans lequel hommes et nature communiquent et se confrontent.
Un objet semble avoir atterri au milieu de ce vide, prêt à reprendre son envol. L'abri-tour est une structure de bois de hêtre massif, tout aussi rigoureuse. Elle est protégée d'une toile tendue, blanche et opalescente qui délimite un espace dans l'espace. Sa forme et sa matérialité fluctuent en fonction des points de vues et de la luminosité ambiante. Une sphère lumineuse de verre soufflée est suspendue entre terre et ciel, tel le pendule de Foucault.
Le pôle des services se dessine de manière linéaire, franche. Sa structure en béton pré-fabriqué et rejetée en façade est rigoureuse, fonctionnelle, binaire. Elle est composée de pleins en tôle d'acier ondulé reflétant son environnement pour mieux s'y fondre et d'un vide central dans lequel hommes et nature communiquent et se confrontent.
Un objet semble avoir atterri au milieu de ce vide, prêt à reprendre son envol. L'abri-tour est une structure de bois de hêtre massif, tout aussi rigoureuse. Elle est protégée d'une toile tendue, blanche et opalescente qui délimite un espace dans l'espace. Sa forme et sa matérialité fluctuent en fonction des points de vues et de la luminosité ambiante. Une sphère lumineuse de verre soufflée est suspendue entre terre et ciel, tel le pendule de Foucault.
︎︎︎
Construction d’une maison des services, d’une supérette de village et d’une halte cycliste en bois
Bourogne, France
clients : commune de Bourogne
2019 - fin des études pro/dce
budget : 550 000 €
surface : 500 m2
clients : commune de Bourogne
2019 - fin des études pro/dce
budget : 550 000 €
surface : 500 m2
co-traitants : Blondeau ingénierie (structures), Bellucci (techniques et énergie)









