L’appartement d’angle
︎︎︎︎︎︎︎︎︎︎︎︎︎︎︎︎︎︎︎︎
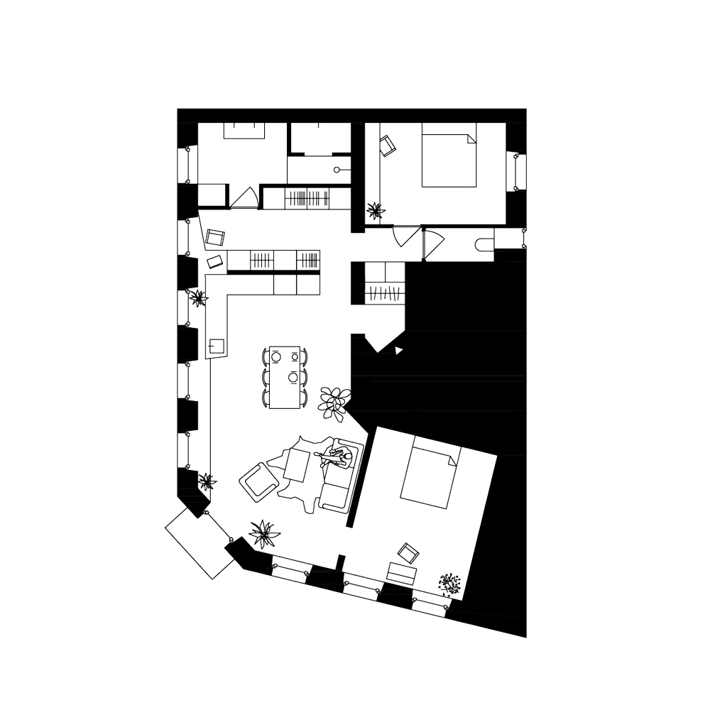
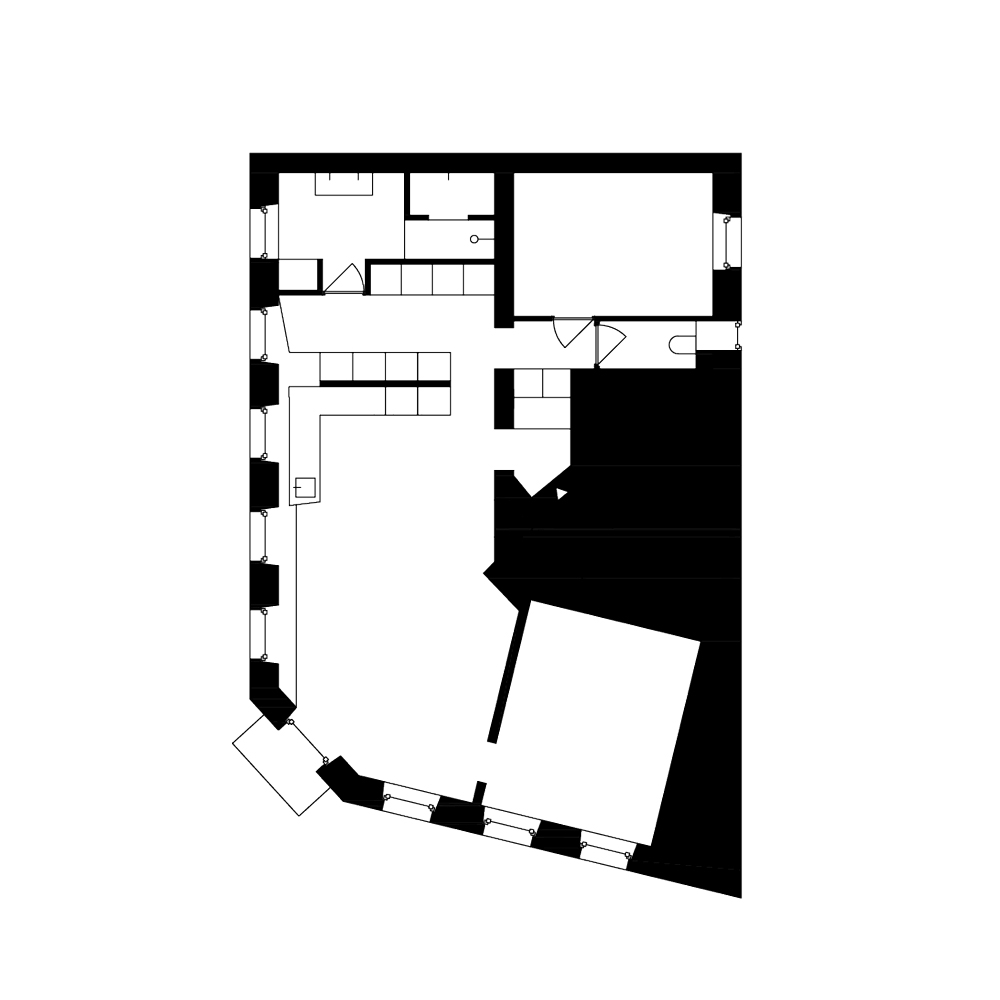
L’impulsion initiale était d’offrir une chambre s’ouvrant sur l’agréable cour de l’immeuble. Ainsi, les pièces d’eau ont été inversées et comprimées par rapport au plan existant. L’ensemble dégage un généreux lieu de vie qui se construit autours d’un meuble central, d’une cuisine à l’italienne et d’une bibliothèque basse filante. En toile de fond, le mur miroir vient questionner l’espace et les lumières. La palette restreinte des matériaux, les éléments menuisés coulissants et l’aspect final filtré remémorent aux clients leurs souvenirs d’Asie.
︎︎︎
rénovation d’un appartement d’angle
Strasbourg, France
client : privés
livré en 2018
budget : nc
surface : 85 m2
client : privés
livré en 2018
budget : nc
surface : 85 m2



